Fabrikausrüstung Oberflächentechnik

Startseite Branchen & Lösungen Fabrikausrüstung Oberflächentechnik Pulverbeschichtung mit Einsatz von konischen FG Filterelementen

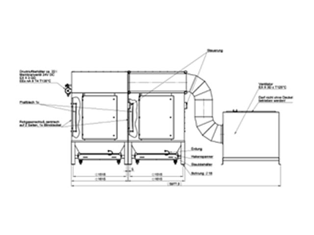
Konische Elemente bei der Pulverbeschichtung

Das Pulverbeschichten ist ein Beschichtungsverfahren, bei dem ein elektrisch leitfähiger Werkstoff mit Pulverlack beschichtet wird. Der Kunde von Filtration Group Industrial stellt Geräte und Anlagen zur Oberflächenbehandlung mit Pulver und Nasslacken sowie Farben und anderen flüssigen Materialien her. Filtration Group Industrial hat für den Anwendungsfall der Pulver- und Nasslackbeschichtung ein Entstaubungsgerät SFK-09 009 016 x 16 S1S SL 80 KA in Rechteckbauweise gewählt. Eine Oberflächenvorbehandlung, eine elektronische Beschichtungszone sowie ein Zwischen- und Haupttrockner bilden die einzelnen Komponenten der Beschichtungsanlage.

Herausforderung

Die zu beschichteten Teile werden während des Bearbeitungsprozesses durch ein Fördersystem transportiert. Typische Untergründe für die Pulverlackierung sind Sahl, verzinkter Stahl und Aluminium. Die Pulverlackpartikel werden zunächst fluidisiert. Dabei muss das Pulver von Fasern, Grobpartikel und Schmutz gereinigt werden.

TECHNISCHE DATEN

  • Volumenstrom: 12.000 m³/h
  • Staubart: Pulverlackpartikel, Fasern, Grobpartikel und Schmutz
  • Betriebstemperatur: max. 40 °C
  • Aufstellung in Zone 22 (Atex)
  • Gehäuse von 0 bis -56 mbar einsetzbar
  • Differenzdruckabhängige Abreinigung unter Verwendung der MFS-07
  • Elemente in konischer Ausführung, Filtermaterial Ti 15 Polyestervlies
  • FF: 15  m², DM 337 mm,
  • Länge: 1.100 mm

Lösungsansatz

  • Filtration Group Industrial hat für diesen Anwendungsfall Quick Lock Elemente in konischer Bauform mit einer Filterfläche von 15 m² in der Länge 1.100 mm, verwendet
  • Das verwendete Filtermaterial Ti15 erreicht im Feinstaubbereich eine hohe Abscheideleistung
  • Die sogenannten „Schubladen“ werden als Staubsammelbehälter verwendet um Bauhöhe zu sparen (Möglichkeit einer Erhöhung des Reingasraumes)
  • Neuentwurf der Schallhauben zur separaten Aufstellung neben dem Gerät
  • Schräger Auslass der Schallhauben auf Grund der Forderung möglichst nach oben auszublasen

Kundennutzen

  • Kostengünstige, kompakte Bauart durch die Möglichkeit geringerer Elementabstände
  • Geringe Gesamthöhe des Geräts auf Grund des Quick Lock Befestigungssystems möglich
  • Effektivere Abreinigung durch gleichmäßigere Strömungsverteilung und reduziertes Innenvolumen (Einsatz der MJD)
  • Höherer Reingasraum für den Anschluss der Reingasrohrleitung
  • Optimale Anpassung des Filtergeräts an die räumlichen Gegebenheiten des Kunden

Downloads

Sie haben Fragen? Sprechen Sie uns gerne an!

PDF Download

Expertise in vielen Bereichen